作者: 尚泰裝飾設計 發表時間:2018-08-08瀏覽量:9944
以現代電力電子技術為核心的電能變換與控制技術在電力系統中的應用——柔性電力技術,使這一目標成為可能。柔性電力技術已經開始應用于發電、輸電、配電與用電的各個環節并得到快速發展:分布式電源通常要通過基于電力電子裝置的變換與調節才能得以聯網和利用,可變速抽水蓄能機組、基于晶家管調節的磁力系統等都是電力電子技術在發電環節的應用。
— 柔電技術科技公司&辦公空間裝飾設計 —
6月份,深圳市科技園一柔電技術科技有限公司依托自身強大的電子整合服務能力,致力于打造集科技、電力、及行業于一體的強大平臺。2018年,深圳某電力有限公司邀請深圳尚泰裝飾集團為其打造商務辦公與客戶服務于一體的一站式空間,開啟科技化高效運營的新時代。
尚泰裝飾集團設計團隊與科技公司客戶進行了充分的接觸與溝通,總結出客戶的基本裝飾需求。
尚泰裝飾要求每一個空間的裝飾設計都必須具備幫助客戶發現問題與解決問題的能力。尚泰設計團隊對原有建筑空間進行了十分細致的考察與分析,發現問題如下:
× 發現問題:顏色偏暗、 風格單調及陳舊、辦公格局不夠明朗
■第二次改造:現場為二次改造房,大面積為落地玻璃幕墻,采光以及通風視野極佳,自然光照充足,空間內結構跨度大,層高也相對較高,有利于空間規劃,能夠良好的保證一個辦公空間的清爽性,提高空間的效率。
1、設計方向
■提高工作效率,提供一個適合員工舒適的辦公空間環境,激發員工創意潛能,催生工作動力,讓員工能夠保持一個良好的工作狀態與舒適的休閑生活。
■進行功能空間分類,合理規劃空間,將空間的功能最大化,規劃空間與空間的連接,保證一個辦公流程的連貫性,動線的靈活性,讓空間功能更加完善,增強空間的創造性與現代感。
■提升品牌形象,從新打造一次品牌的空間理念,提升空間品質,提升企業整體形象,提升企業品牌價值。
關鍵詞:多元化、工業風、時尚開放、商務辦公
2、色彩組合
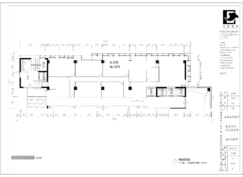
3、平面規劃
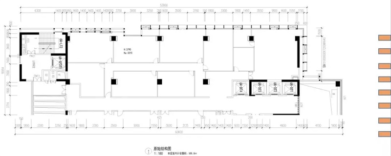
4、原始結構圖
5、意向方案
■前廳
前廳區域背景呈灰色,而天花采用流線型燈管,從正面看過來工業風十足。再搭配一點木質書柜,使空間更有層次!以及體現質感的冷色系材質進行空間裝飾和搭配。
■開放式辦公區
開放辦公區域作為整體員工工作區域,保證員工舒適性,提高工作效率,天花鏤空吊頂,天花用白熾燈裝飾,地面沒有過多的造型,用以光滑干練的灰色系地磚。用點光源和條形光源相互配合,就像繪畫一樣,點線面的配合。令空間更生動。

■經理室
以落地窗為視野,讓空間更有層次、氛圍。營造正式,隆重的環境。并且讓商務會談私密性高的同時增加了輕松氛圍。木質家具更是將工業風以及中式現代完美詮釋。
■家私參考:
■洽談室
洽談室接待室作為接待客戶的重要場所,首先就是考慮舒適大氣,讓客戶感覺到溫馨跟品質,天花采用造型吊頂,地面采用地毯的形式,墻面以局部造型跟玻璃組合的形式達到效果。
■休閑區
休閑區作為員工休息以及公司內部文化展示的一個重要區域,在視覺上首先考慮舒適以及放松,讓員工能夠保持對于工作的舒適性,地面采用地毯的形式保證地面的舒適性,墻面天花采用局部造型的形式將整個區域凸顯出來,配合有色彩的布藝家具,滿足使用舒適性的同時,也達到視覺上的效果。
■平面施工圖
本案設計為工業風格,是80、90后年代的人追求個性、簡單、自由的生活。而工業風格本身所散發出得樸素、簡單、韻味的特質,是該公司的主旨。加之它粗獷的工業設計,開闊的空間,自由與設計美并行的同時,又不乏時尚氣息,讓人在自己家中就有一種創作的自由感。
以工業風設計為理念,前臺采用簡單的白色大理石材料作為展示,背景是水泥墻加木紋鋁方通,凸顯工業風氣息。在進門接待處安排了鑲嵌頂部的鋼架結構書柜,讓設計不僅是裝飾,更具有實用性。整一個空間頂面噴黑處理, 提升整個空間的工業氣息。為此,尚泰設計師傾全力打造了一個符合該公司形象的辦公空間。
項目名稱:柔電技術辦公室設計
項目地址:深圳市寶能科技園
設計時間:2018、6
項目設計師:呂鶴、王成俊
項目類型:辦公室
項目面積:700m2
設計風格:工業風
“一站式“辦公室裝修設計,當選尚泰裝飾,這里有您想要“辦公室”設計與裝修!

掃一掃關注官方微信

掃一掃訪問手機網站