作者: 尚泰裝飾設計 發表時間:2018-05-24瀏覽量:11666
對于買買買一族而言,快遞物流簡直就是“維系生命”一般的存在,現代人的買買買早已不再局限于某個特定區域,全球物流的快速發展讓“買向全球”成為可能。
說起快遞物流公司,國人最熟悉的莫過于“三通一達”,而在全球貨運領域,DHL(敦豪)可以說是全球快遞、洲際運輸和航空貨運的領導者,也是全球第一的海運和合同物流提供商。
以下是DHL全球的統計數據,展示全球最大的快遞和物流網絡的實力。
員工-- 超過285,000人
辦公地點-- 約6,500
轉運中心、倉庫和集散站-- 超過450個
口岸-- 240個
飛機-- 420架
作業車輛-- 76,200部
國家和地區-- 超過220個
每年件量-- 超過15億
所覆蓋的目的地-- 120,000
DHL在中國
中外運敦豪國際航空快件有限公司于1986年12月1日在北京正式成立。合資雙方為中國對外貿易運輸(集團)總公司和敦豪國際航空快遞公司,雙方各占一半股權。合資公司將敦豪作為國際快遞業領導者的豐富經驗和中國外運集團總公司在中國外貿運輸市場的經營優勢成功地結合在一起,為中國各主要城市提供國際航空服務。
在過去的十八年間,中國的經濟迅速增長,而中外運敦豪亦創下驕人業績,公司每年平均增長率為40%,營業額躍升60倍之多。中外運敦豪已穩居我國航空快遞業的領導地位,在中國的市場占有率達到36%。
— DHL深圳辦公空間裝飾設計 —
2018年,DHL邀請深圳裝飾公司尚泰裝飾集團為其深圳新辦公室進行裝飾設計,以期全面升級深圳地區的服務品質。尚泰裝飾設計師在與DHL的探討碰撞中,逐步形成符合DHL要求且超越預期的全案定制設計方案。
1、設計方向
■ 空間規劃滿足使用的同時融入更多現代元素,在現代簡約的基礎上增加創意靈感細節。
■ 整個空間根據功能的需求可分為以下塊區,前廳,休閑接待區,會議區,開放辦公區,儲藏設備區,獨立辦公室區域,空間過道等。
■ 考慮到整體面積不算大,需要提高空間的使用效率,空間規劃簡潔大氣,在造型上突出創意性,不拘一格的創造為員工帶來不一樣的靈感。
■ 材質方面以新型環保現代風的材質為主,以木飾面,鐵藝,玻璃,有色漆進行空間裝飾,保證風格的同時提高空間的創造性。
■ 照明方面,自然光和冷光為主,一方面保證空間的自然性,另一方面通過燈光營造空間的層次感和科技感。
■ 關鍵詞:現代、創意、科技、時尚、國際化
2、色彩組合
整體色調使用白色以及DHL主色調以及現代風色調,一些細節以深色以及原木色作為點綴,配合暖色系的燈光,突出整體空間明朗舒適的氛圍,展現一個良好的現代化國際企業形象。
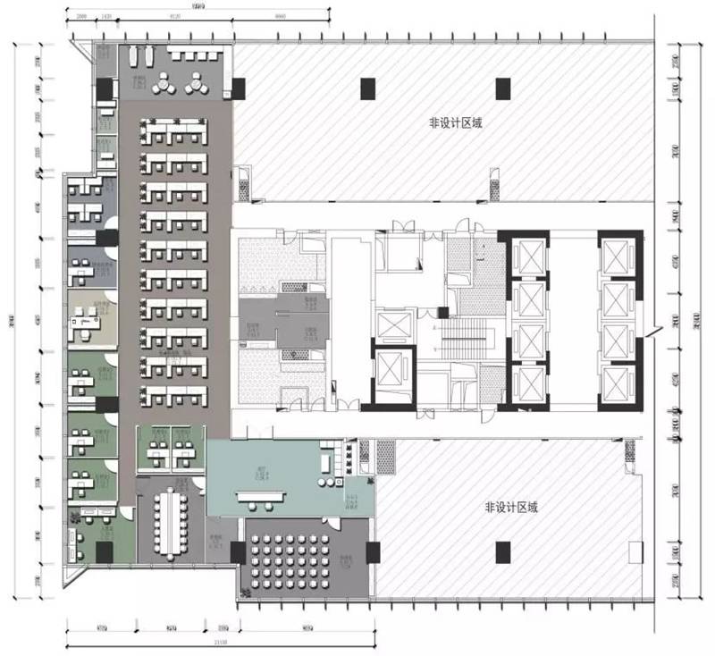
3、平面規劃
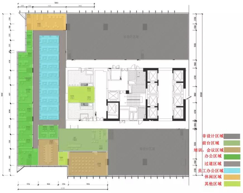
4、區域分析
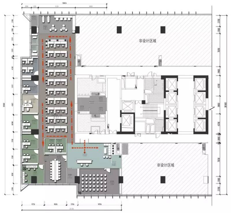
5、動線分析
6、意向方案
■ 前廳
前廳區域以白色與DHL的logo色形成強烈的對比,突出企業logo。
設計地磚采用白色的仿大理石地磚,天花采用流線型的燈膜,家具現代簡約,大廳整體簡約大方。
案例參考
、
■ 休閑接待區
前廳休閑接待區主要以休閑舒適大氣為主,側邊的整落地書架在裝飾空間的同時,讓整個空間充滿書香氣息。
▲
1.墻面落地書架
2.地面自流平
3.天花噴灰
■ 水吧區
水吧區是員工午休以及接待使用區域很高的一塊區域,很直接的反應出一個公司的氛圍,陽光休閑舒適是這里的主題,布置方面以北歐休閑的形式,搭配一些輕工業風的家具,天花做了燈膜,地面采用仿木紋地磚,家具現代簡約。
▲
1.天花原頂噴灰
2.地面水泥自流平
3.家具休閑布藝
4.燈飾創意個性
■ 會議室
大會議室作為一個集中以及接待的區域,在布置方面更為大氣,強調空間的儀式感。
■ 開放辦公區
開放辦公區域作為整體員工工作區域,保證員工舒適性,提高工作效率,天花噴灰色漆,天花用黃色和白色的燈裝飾,墻面沒有過多的造型,整體營造的氛圍很和諧。
▲
1.天花原頂噴灰
2.辦公地毯
3.燈飾創意簡潔
4.家私簡潔板式
■ 經理室
經理辦公室定制了簡約現代的家具,天花做了平頂,整體突出現代簡約的理念。
保證空間的通透性以及采光的同時注重空間的舒適性。
▲
1.平頂天花
2.地面地毯
3.墻面白色乳膠漆
4.板式家具
■ 總經理室
總經理室大氣沉穩時尚,展現一個企業的領導氣質,天花采用異形燈膜形式,做出時尚造型感,墻面主要以木飾面組合的形式,地面組合地毯,家具以大氣沉穩的板式造型為主。
▲
1.天花造型燈膜
2.墻面木飾面組合
3.地面地毯組合
4.家具板式家具
5.家具油漆家具
■ 過道墻面
辦公區的過道墻面主要采用顏色的組合形式,豐富整個空間的氛圍,人的視覺也能夠得到緩解。
▲
墻面有色漆組合
■ 家具概念延伸
采用現代簡約品質辦公桌椅為主,色調與辦公空間保持一致。
■ 俯瞰圖
一
本案設計在滿足辦公空間功能需求的前提下,設計師運用現代、時尚、簡約的設計語言,體現了建筑空間原有的美感,整體線條流暢,充分研究辦公空間動線,分析人員辦公行為模式,精準劃分功能分區,提高空間綜合使用率。而對于敦豪深圳辦公空間而言,更承載著企業運營、企業文化、客戶合作等重要價值。
尚泰設計團隊秉持可持續創造價值的設計原則,為DHL深圳公司打造了建立在不同的商業模式、行業性質、文化經濟背景等戰略高度的、前瞻性的、可持續發展的辦公空間設計。
一
項目名稱:敦豪物流(深圳)分公司
項目地址:深圳市龍崗區星河WORLD
項目設計師:李利明 徐世鋒 李小芳
設計時間:2018年3月
項目類型:公裝
項目面積:590m2
設計風格:現代簡約

掃一掃關注官方微信

掃一掃訪問手機網站