作者: 尚泰裝飾設計 發表時間:2018-09-06瀏覽量:4894
上喜龍園是巴金先生的爺爺李竹西老先生的故居,經保護性拆遷重建于成都文殊院傳統古建街區內,為一典型川西穿斗式木結構的三合院落,南北向五開間,西側四開間、東側為一涼亭接游廊圍合,分前、中、后三院落。手執純銅龍紋LOGO把手推門而入,雖無氣宇軒昂之勢,卻有碧玉小家之幽,院內原植銀杏數株,百年香樟樹一棵,靜坐院內觀四時枯榮,無車馬之喧囂,恍然如隔世。然如同現存大量古建一樣,過多繁雜裝飾和傳統的木造門窗使得房間內光線昏暗、隔音不佳、壓抑陰沉。如何進行保護性改造,即使建筑古造細作得以顯揚,又能適應現代生活的起居所需,是接手龍園后反復思考的重點。大部分古建傳繕遵循的是修舊如舊的思路,但細致斟酌后,我們決定探索進一步的可能性,也許可在傳統與現代、地方性和國際化的光譜中,尋找到頻率相近的區間。
▼建筑外觀
原廊院景觀中以東西游廊涼亭水池為中心展開,較為完整,此次僅在植株上略作調整,增植紅楓一株、石榴樹兩株,并增加多層次的照明點綴,讓夜景更為迷人。戶外家具選用意大利著名品牌ETHIMO,讓客人有不一般的院落休閑體驗。酒店LOGO、指示牌等平面設計兼具傳統味和國際范,點綴于舉手投足、回眸注視間,叢另一方面營造酒店的超然品味。
▼從門廳看建筑內院
為使客人有最佳的居住體驗,整個院落僅設計成五個套間客房,留前后中堂取名“棲”和“奕”作為接待和客人休閑空間,西廂房另設現代化廚房,不僅為客人提供地道川味家常菜或訂制私房家宴,亦可讓客人親自下廚,體驗家居的放松愜意。“棲”為接待前廳,也是賓主品茗交流之所,而“奕”是多功能廳,主人因善棋而名,客人可品酒、讀書、宴客、對奕、賞樂、會議,配備了80寸全觸摸屏智能電視和B&O藍牙音箱,可與客人手機無線對接,于此既能體驗口舌之福,聲色之娛,同時更有主客間的精神交流和碰撞。設計手法上,“棲”和“奕”采用四重玻璃感應門,周邊茶色貼膜,中留透明圓洞,茶色貼膜呈現老照片的調性又讓客人有幾分私密感,開合之間,突顯空間的中軸,又有穿越古今的意趣,同時墻面內凹的圓形博古架進一步呼應圓月的主題。木梁灰瓦之下,銅管經緯縱橫,球形燈泡星點,仿佛屋蓋下漸漸隱去的人事。茶桌上低垂一列球泡,照亮當下。
▼過廳 – 休閑空間
▼客人既能體驗口舌之福,聲色之娛,同時更有精神交流和碰撞
▼木梁灰瓦之下,銅管經緯縱橫,球形燈泡星點
五間客房取名于傳統丹青中“胭”“藍”“黛”“綠”“翠”五色,空間上鋪陳延展,由里到外,層層遞進,“胭”,“藍”用更衣間分隔前后廳,進擁一院枯榮,退享叢竹靜幽。床架上白縵閑垂,添幾分懶意。洗手臺由銅管框構而成,銅鏡懸吊,時尚簡潔,又具幾分古意,衛生間墻地雅士白和古木紋黑色大理石搭配,一輕描一濃彩,如水墨寫意,漸變白紗玻璃移門,再添幾分水乳交融之趣。“黛”客房橫向軸線貫穿客、臥、浴空間,而客廳開合的圓月造型電視柜移門,與對面亭子中景壁的圓形龍紋LOGO遙相呼應。室內家具、配飾的選擇也由五色為主題而展開。室內家居配飾的選擇以五色為主題,風格上突顯東方韻味又洗練簡潔,同時兼具家居雅趣,和竹編藤藝等傳統手工藝表達,品牌選擇無問東西,有法國RED、意大利GTV、新加坡STELLARWORKS、東歐MITJA、北歐OBJECTUM和國內班蘭、HC28等組合。定制的水柜和現代水墨畫在各個視覺焦點上呼應圓月主題。
▼“胭”客房概覽
▼床架上白縵閑垂,添幾分懶意
▼“胭”客房前廳
▼“黛”客房客廳
▼”黛”客房橫向軸線貫穿客、臥、浴空間
▼“黛”客房
▼“綠”客房
▼客廳開合的圓月造型電視柜移門,與對面亭子中景壁的圓形龍紋LOGO遙相呼應
中國文化的精髓不在廉價的符號拼貼,而在于抽象化的意韻表達,這一點也是現代主義美學的訴求。由此展開,我們將原建筑吊頂拆除,將川西民區樸素的結構邏輯和灰瓦的肌理之美照亮,而近人尺度的墻身,則用木框絹絲硬包飾面將原有繁瑣的細節隱藏,管線內置,既不破壞古建主體,又呈現親切舒適的質感,同時拆除朝向內院原有的木門窗,換裝隔音采光良好的鋁木復合門窗,讓客人在房間內得以感受前庭后院的光影浮動。而入夜房間外溢的燈光,又讓院子倍增溫馨活力。業主不惜重金巧借廊道屋檐和地面作為管道通道,安裝了冷暖空調、全屋地暖、即時中央熱水循環系統、智能燈光調節系統,選用杜拉維特智能馬桶、漢斯格雅雨淋花灑、科勒鍍金龍頭等高級衛浴,讓客人身處傳統合院,卻能享受現代五星級酒店的設施之便。
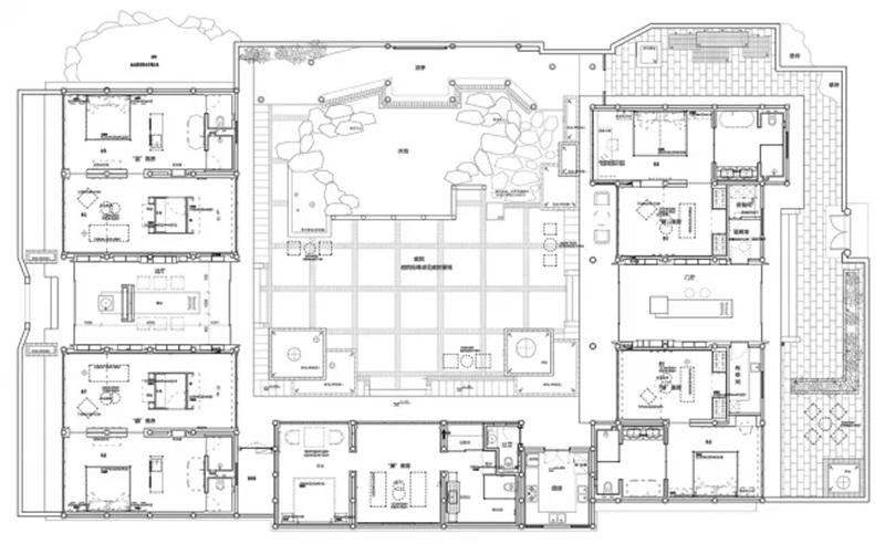
▼平面圖
項目名稱:上喜龍園精品酒店
項目地點:四川 成都
項目面積:826㎡
設計時間:2017年
完成時間:2018年
圖文版權歸原著所有,如有侵權,聯系刪除。

掃一掃關注官方微信

掃一掃訪問手機網站