作者: 尚泰裝飾設計 發表時間:2017-09-19瀏覽量:11371
隨著國家新一輪西部大開發、“一帶一路”、長江經濟帶等戰略的實施,大湄公河次區域經濟合作的加強,孟中印緬經濟走廊建設的推進,作為幾大開放帶結合部的云南和貴州,正把擴大對外開放、發展開放型經濟作為適應經濟全球化發展的歷史選擇,作為主動服務和融入國家發展的戰略選擇,用更加積極主動的對內對外開放政策,開啟“走出去、引進來”雙引擎,加大招商引資力度,加快經濟、信息、科技、教育、文化等領域的互動發展,譜寫合作共贏新篇章。
▼美麗的玉溪市
在全力拓展對外開放的大環境下,美辰科技勇于拼搏,敢闖敢試,克服困難,積極搶占市場先機,并積極服務和推動當地經濟社會發展。
美辰科技股份有限公司(簡稱“美辰科技”)成立于2011年,主要經營通訊設備、平板電腦、SMT貼片、智能安防設備、家用電器、電子產品、電子元器件的技術服務、生產與銷售;供應鏈管理服務;貨物及技術進出口等業務。
今天尚泰君為大家介紹美辰科技于貴州和云南的新辦公室設計
↓↓↓
云南美辰科技
項目設計:張峰、郭瓊
項目面積:2000㎡
項目地址:云南省玉溪市
設計理念:本案色調上以科技感的藍色為主,多采用簡潔現代的造型,各功能區動線連貫流暢,整體色調簡潔大方,卻又極具視覺沖擊力,符合大氣而不張揚的大型上市企業辦公設計要求。
前廳
前廳以象牙白為主色調,簡單有力的造型、恰到好處地展現了美辰科技的品牌文化和創造力。
會議室
會議室講究中心對稱、有助于提高會議的效率,營造嚴肅的商務氣息。
董事長辦公室
董事長辦公室則采用新中式風格,一幅水墨畫雅致又有韻味,搭配厚重的實木辦公家具等,盡顯穩重氣質。
展廳
動感的圖形、獨樹一幟的造型,另到展廳時尚與科技感兼具。
項目設計:張峰、吳波
項目面積:1516㎡
項目地址:貴州省貴陽市
設計理念:本案主打白色基調,利用縱伸感強的線條以及線條燈來營造現代化的空間,并采用仿大理石以及不銹鋼條等亮面材質,輔以各式燈具和辦公家具,使得功能區融為一體,彰顯開放大氣的空間格局。
前廳
現代簡約的前廳設計,白色天花與地板,天空藍背景墻,整個空間清新有活力。
董事長辦公室
董事長辦公室分設三個功能區:個人辦公區、會議區以及洽談區,實用又美觀。
展廳
云南美辰科技的展廳同樣讓人過目不忘,時尚靈動的弧形曲線做造型,配合高科技展示媒體設備,讓展廳成為產品亮相的最佳舞臺。
?吸引美辰科技來到云南和貴州的,除了本地產業基礎好、發展勢頭強、創業氛圍濃外,還有最重要的政策支持,在當前政策的利好下,美辰科技定能依托本地優勢資源,宏圖大展,裕業有孚,譜寫企業發展新篇章!
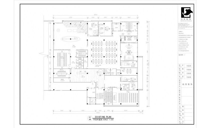
貴州美辰科技平面圖
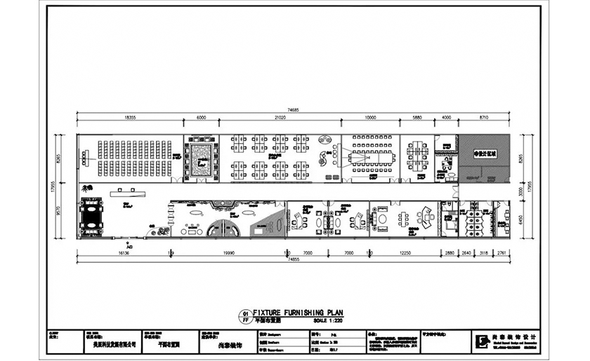
云南美辰科技平面圖

掃一掃關注官方微信

掃一掃訪問手機網站